İşler
Front Hakkında
FW_LOG
İşler
Front Hakkında
FW_LOG
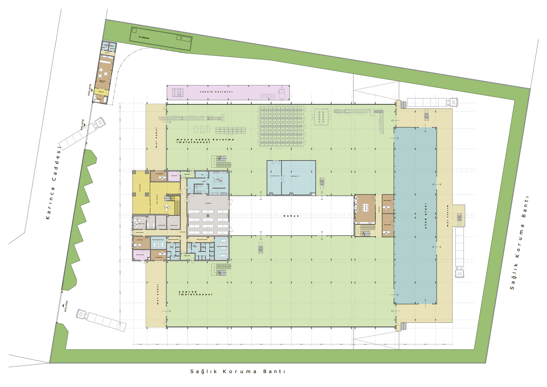
Mis Yaprak
meyve ve sebze kurutma fabrikası
2020
↑
Back to Top