İşler
Front Hakkında
FW_LOG
İşler
Front Hakkında
FW_LOG
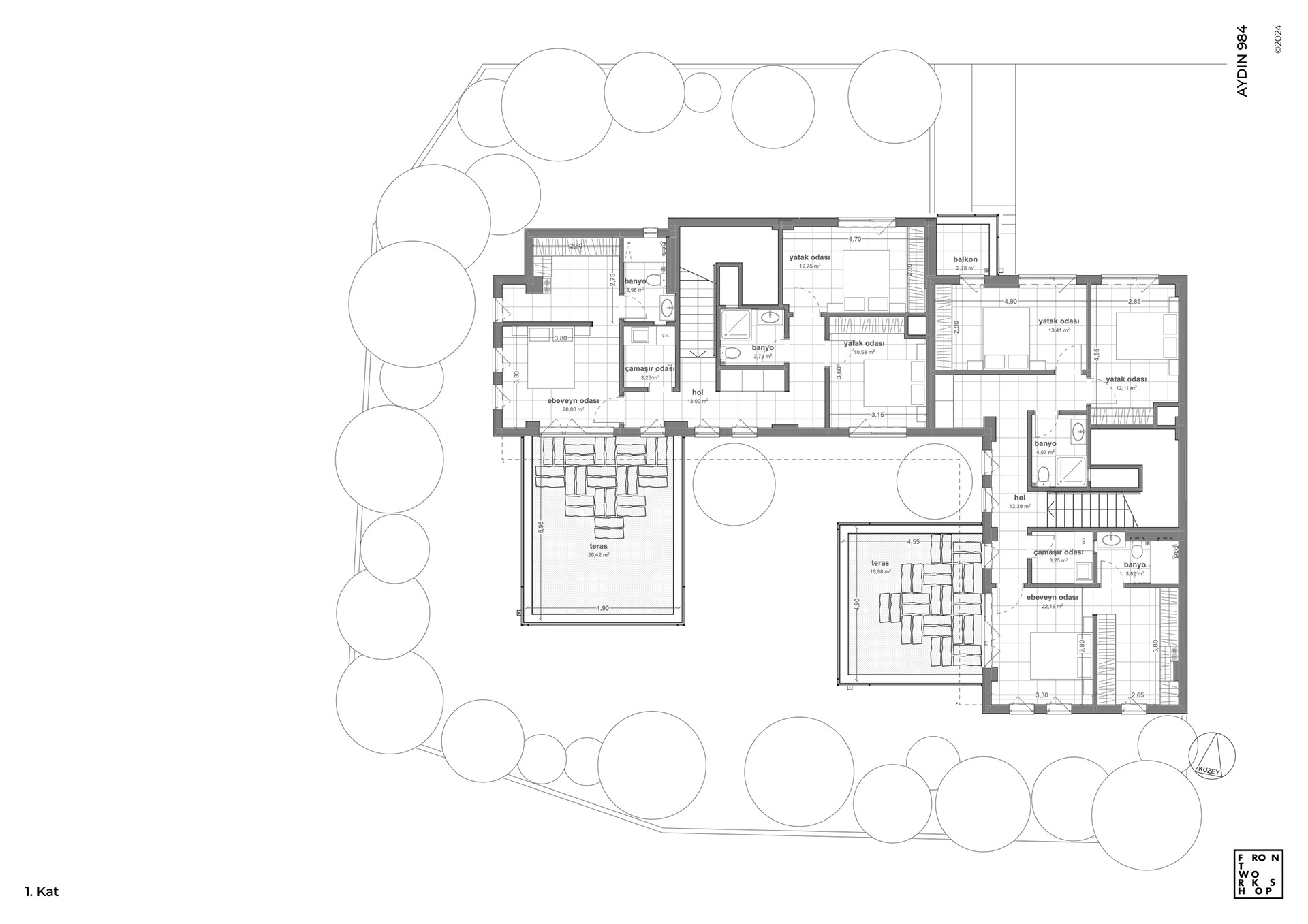
Aydın 984
2024
↑
Back to Top